
板橋区氷川町:4,280万円
中古一戸建
オオミハウジング
閑静な住宅街、交通利便の良い立地、北東角整形地
通学区域
小学校:板橋第一小学校
中学校:板橋第三中学校
担当:庄司
皆様のご希望やご事情に応じた売却をさせていただいています。
近県の不動産売却のご相談はお気軽に!



| 種別 | 中古一戸建 |
|---|---|
| 管理番号 | 板橋区氷川町 |
| 価格 | 4,280万円(消費税課税なし) |
| 所在地 | 東京都板橋区氷川町 |
| 交通 | 都営三田線「板橋区役所前」駅 徒歩7分 東武東上線「大山」駅 徒歩9分 |
| 敷地面積 | 43.61m2(13.19坪)/実測 ※角切部分含む。 外に私道持分あり/24.08m2(7.28坪) |
| 土地権利 | 所有権 |
| 地目 | 宅地 |
| 都市計画 | 市街化区域 |
| 用途地域 | 第一種住居地域 |
| 建蔽率 | 60% |
| 容積率 | 180% |
| 防火規制 | 準防火地域 |
| 高度地区 | 第三種高度地区(最高限度35m) |
| 日影規制 | (ー)4-2.5時間/4m |
| その他 | 宅地造成等工事規制区域、板橋景観計画(一般)地域 |
| 前面道路 | 北側:4.0m私道(建築基準法第42条第2項道路) 東側:4.5m公道 |
| 設備 | 公営水道 本下水 東京ガス 東京電力 |
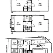
| 建物構造 | 木造スレート葺 3階建 |
| 間取タイプ | 3DK+車庫 |
| 床面積 | 1階:16.74m2 2階:28.35m2 3階:25.92m2 合計:71.01m2(21.48坪)/公簿 |
| 築年月 | 平成10年1月築 |
| 現況・引渡 | 空家・即時 |
| 取引形態 | 媒介 |
| 備考 | ※現況でのお引渡しとさせていただきます。建物、付帯設備は経年劣化、使用に伴う性能低下、キズ、汚れ又は破損箇所等があります。予めご了承願います。 |
















